發布時間:2021-03-24 12:10:33 作 者:田蘭 點擊: 次
電機振動給料機在生產流程中,可把塊狀、顆粒狀物料從貯料倉中均勻、定時、連續地給到受料裝置中去,在砂石生產線中可為破碎機械連續均勻地喂料,并對物料進行粗篩分,廣泛用于冶金、煤礦、選礦、建材、化工、磨料等行業的破碎、篩分聯合設備中。
接下來將為大家介紹一下電機振動給料機的型號規格以及選型方法供大家參考:


電機振動給料機按其結構和用途可分為三種類型:振動給料機GZD型、振動給料機ZSW型、振動給料機GZZ型。
1、GZD型電機振動給料機

| 型號 | 生產率 t/h |
粒度 mm |
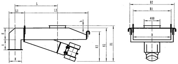
L | L1 | L2 | B | B1 | B2 | H | H1 | H2 | H3 | h | D | A | 噪聲 dba |
功率 kw |
電壓 v |
重量 kg |
| GZD15-Ⅰ | 15 | 40 | 600 | 295 | 700 | 250 | 380 | 210 | 100 | 660 | 590 | 540 | 50 | Ф250 | 100 | 70 | 0.15 | 220 | 84 |
| GZD15-Ⅱ | 800 | 420 | 775 | 88 | |||||||||||||||
| GZD15-Ⅲ | 1000 | 550 | 845 | 94 | |||||||||||||||
| GZD30-Ⅰ | 30 | 50 | 600 | 230 | 845 | 400 | 530 | 360 | 160 | 720 | 660 | 550 | 50 | Ф400 | 160 | 740 | 0.25 | 136 | |
| GZD30-Ⅱ | 700 | 300 | 870 | 140 | |||||||||||||||
| GZD30-Ⅲ | 800 | 375 | 895 | 144 | |||||||||||||||
| GZD30-Ⅳ | 900 | 435 | 935 | 148 | |||||||||||||||
| GZD30-Ⅴ | 1000 | 475 | 995 | 152 | |||||||||||||||
| GZD30-Ⅵ | 1100 | 525 | 1045 | 156 | |||||||||||||||
| GZD30-Ⅶ | 1250 | 675 | 1045 | 162 | |||||||||||||||
| GZD50-Ⅰ | 50 | 60 | 600 | 230 | 902 | 500 | 714 | 450 | 200 | 840 | 770 | 570 | 60 | Ф550 | 200 | 76 | 0.4 | 380 | 173 |
| GZD50-Ⅱ | 700 | 300 | 932 | 196 | |||||||||||||||
| GZD50-Ⅲ | 800 | 380 | 970 | 215 | |||||||||||||||
| GZD50-Ⅳ | 900 | 430 | 1002 | 222 | |||||||||||||||
| GZD50-Ⅴ | 1000 | 470 | 1062 | 230 | |||||||||||||||
| GZD50-Ⅵ | 1200 | 580 | 1170 | 240 | |||||||||||||||
| GZD50-Ⅶ | 1600 | 700 | 1450 | 358 |
GZD電機振動給料機具有給料機的全部性能,它裝在料倉底部,用作破拱和均勻給料,有破拱、給料、截流、調流四種功能,給料松散、連續、均勻、準確、結構簡單、重量輕、工作可靠、操作容易、易損件少、能耗低、噪聲小于 72dB(A)、使用廣泛,對老倉、方倉、圓倉與新倉均可使用。
2、ZGM型電機振動給料機
| 型號 | 安裝傾角 | 入料粒度 | 振頻 | 雙振幅 | 功率 | 處理量 | 配用激振器 | 配用電機 | ||||
| 度 | mm | Hz | mm | Kv | t/h | 型號 | 激振力 | 型號 | 功率 | 電壓 | ||
| ZGMZ-100 | 5 可調 |
≤100 | 16 | 5-7 | 2.2×2 | ≤100 | WZJY-30-6 | 30 | Y112M-6 | 2.2×2 | 380 | |
| ZGMZ-200 | ≤200 | 2.2×2 | ≤200 | |||||||||
| ZGMZ-400 | ≤300 | 6-9 | 3.0×2 | ≤400 | WZJY-50-6 | 50 | Y132S-6 | 3.0×2 | ||||
| ZGMZ-600 | 3.0×2 | ≤600 | ||||||||||
| ZGMZ-800 | 4.0×2 | ≤800 | WZJY-75-6 | 75 | Y132M1-6 | 4.0×2 | ||||||
| ZGMZ-1000 | 4.0×2 | ≤1000 | ||||||||||
| 型號 | 安裝傾角 | 入料粒度 | 振頻 | 雙振幅 | 功率 | 處理量 | 電機型號 |
| 度 | mm | Hz | mm | Kv | t/h | ||
| ZGM-100 | 5 可調 |
≤100 | 16 | 5-7 | 0.7×2 | ≤100 | YZO-8-8 |
| ZGM-150 | ≤150 | 1.0×2 | ≤150 | YZO-10-6 | |||
| ZGM-200 | ≤200 | 2.0×2 | ≤200 | YZO-20-6 | |||
| ZGM-250 | ≤250 | 6-9 | 2.0×2 | ≤250 | YZO-20-6 | ||
| ZGM-350 | 2.5×2 | ≤350 | YZO-30-6 | ||||
| ZGM-550 | 3.7×2 | ≤550 | YZO-50-6 | ||||
| ZGM-850 | 3.7×2 | ≤850 | YZO-50-6 |
ZGM系列電機振動給料機廣泛應用于煤炭行業,把原煤及粉煤從貯料倉均勻或定量給到受料設備中,它具有起動迅速,停車平穩,維修少,安裝方便,結構簡單等特點,是煤炭行業中給料的理想設備。
3、GZZ型電機振動給料機

GZZ系列電機振動給料機是一種新型給料設備,它以激振電機為激振源,較之電磁振動給料機和往復式給料機具有結構簡單、體積小、重量輕、運行可靠、安裝維修方便、噪音低、能耗小等優點。用于貯料倉及料門下快速排料和做為種量精度在 5 %的要求下連續均勻地把物料輸送到受料裝置中去,通過調整振動電機的激振力可以方便地改變生產率。

1、生產率的確定
本系列電機振動給料機的生產率是以河砂為標準物料給出的(堆比重為1.6T/m3)。當物料堆比重大于1.6T/m3時,其產量可按額定值選??;當物料的堆比重在1.2~1.6T/m3時,其產量可達到額定產量的0.9~1.0倍。當物料堆比重在0.8~1.2T/m3時其產量可過到額定值的0.8~0.9倍。物料堆比重小于1.6T/m3時,須適當增加料層厚度,以提高產量。對于振動給料機難于輸送的物料(如滑石粉、鈦白粉、白泥、面粉、粘土等),以及含水量較大的親水性物料,則應根據試驗確定產量。必要時將槽體適當傾斜安裝(一般向下傾斜10~15度),以增加給料量。
2、控制箱的選擇
本系列電機振動給料機配套控制箱為反接制動控制箱,它可使給料機在停車時,快速停機,使給料機迅速通過共振區,避免過大振幅對機器造成損害。該控制箱具有過流、過壓、斷相等保護功能,另可根據工藝要求,增加能耗制動、快慢加料、遠程控制及無級調速等功能。用戶在訂購時請注明。
3、給料機使用條件
(1)環境溫度不超過+40℃;
(2)在環境溫度為20±5℃時,周圍介質相對濕度不大于85%;
(3)周圍沒有嚴重腐蝕及影響電氣絕緣的介質。
4、若空間有限可定制產品
如在選型時遇到空間距離限制寬度,可考慮將振動電機改為后置安裝,減小寬度尺寸?;蛘呤桥c廠家 一同設計定制一款合適的產品。
以上是對電機振動給料機規格型號及選型的介紹,小編就為大家簡單的介紹到這里,若大家還有什么不明白可咨詢新鄉大漢機械的客服人員。
上一篇:沒有了
下一篇:沒有了
Copyright ? 2008-2019螺旋輸送機廠家-新鄉市大漢振動機械有限公司 All Rights Reserved 版權所有
網站備案號:豫ICP備09002479號-47
網址:http://www.yts678.com.cn/新鄉大漢機械廠家專業生產螺旋輸送機、皮帶輸送機、提升機等機械

